суббота, 2 февраля 2013 г.

модель крана сделать

САПР и графика ЂЂЂ3'2009

Д о б р о   п о ж а л о в а т ь   н а   W e b   -   с е р в е р   ж у р н а л а   С А П Р   и   г р а ф и к а

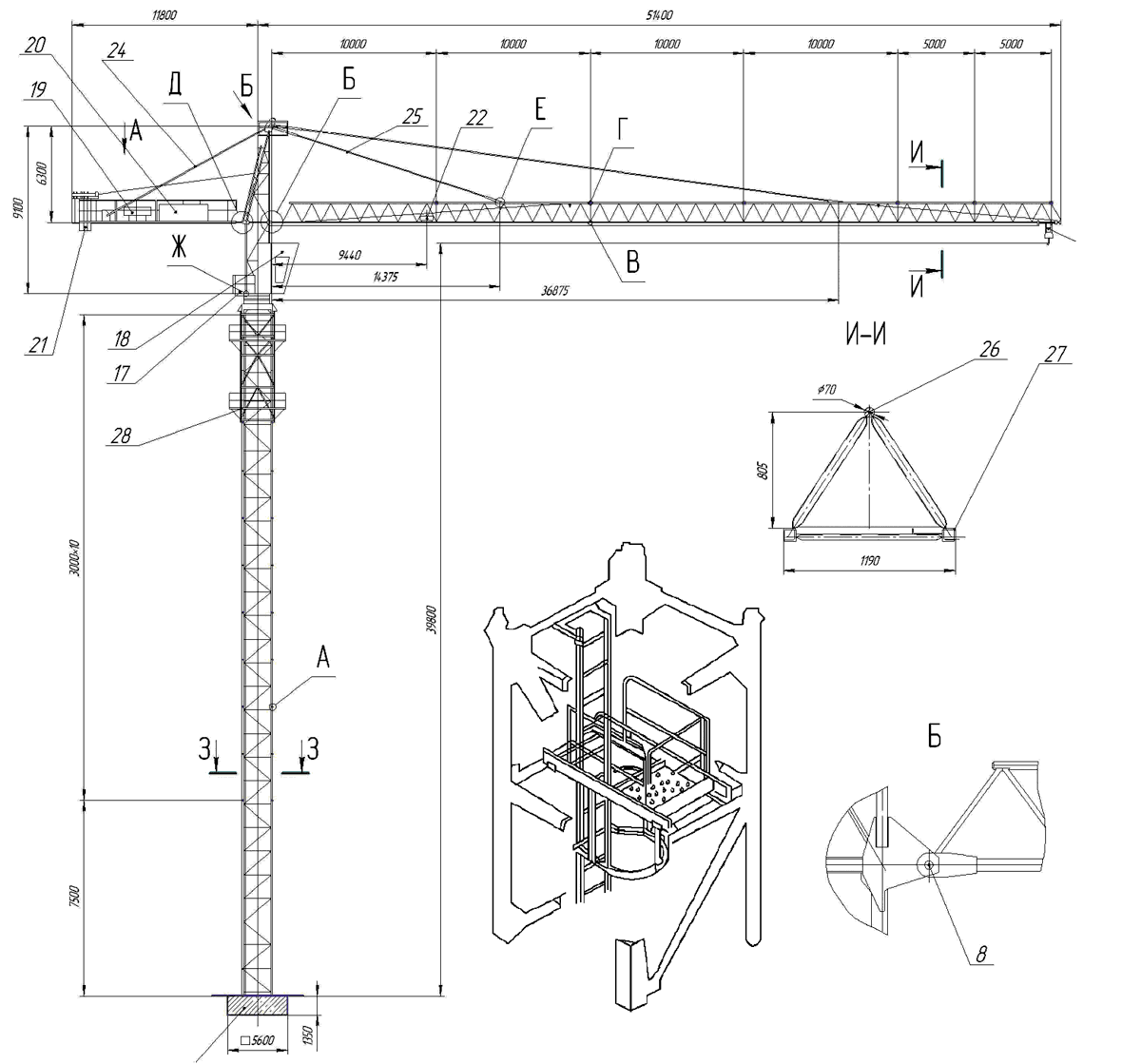
Журнал "САПР и графика" | (96-98) Конечно-элементный анализ металлоконструкции башенного крана в APM Structure3D

Комментариев нет:

Отправить комментарий